本案位于合肥春天广场24层,以一种不典型的现代科技感和新中式结合起来制作,有一种赛博朋克的中式科技感。元宇宙概念下衍生出很多带有高级科技感的设计形式,以冷白色的整体基调作为科技的主线,在其中加入银白色的线条做点缀,中国风的元素配合共同打造一种形而上的未来中国新式美学质感。 办公室的建筑感空间感都很强烈,利用各种质感的材料激发空间的新潜能,突破空间天然的限制。摒弃了复杂的线条和装饰,用简约利落的空间指向性明确的提出了空间设计的新主张,极简的科技感。
——一鸣空间设计 | Y · M Space Design
横屏观看体验更佳

门头使用led灯亮眼的将公司的名字展示出来,圆弧形的岩板造型配合木饰面在空间营造一种延伸感。绚丽蜿蜒的的岩板纹路恍若闪耀的星空宇宙,暖黄色的logo恍若闪烁的星子,错落的绿植给人一种生机勃勃的感觉,让人对公司的门头有一种眼前一亮的惊喜感。


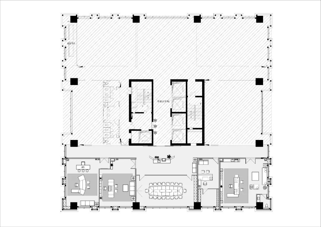
设有会议室和接待区,银白色的整体桌椅搭配了长虹玻璃做一个简洁和规整的会议空间,整面的落地窗和玻璃的质感结合,全透明的空间即有隐私感又有透亮的光线撒入。磁吸轨道灯和内嵌工装筒灯结合营造出一种简约大气的空间感。

原木色的瓷砖地板耐脏,与独立的办公室的木地板颜色做一个呼应。简约但不简单的办公桌设计,以白色和原木色打造一个严谨明亮的冷静办公空间。
茶桌的设置和真皮沙发的引入适合有访客到来之时做一个完善的接待,奔马图的装饰画在中式传统文化中代表马到成功的意思,配合现代中式的空间传达出一种中式韵味,办公桌宽敞严肃有一种肃穆感。

人字拼的木地板给人更舒适的质感,正面的山水画屏风质感的集成墙板,射灯照射突出一种烟雾朦胧的江南风光。岩板质感的整面的办公桌造型独特,几何曲线让空间除了山水意味也多出一丝严谨的科技感。





项目名称 / 春天广场-现代中式办公室
设计公司 / 文青一鸣空间设计团队
执行设计 /  王亚伟
项目地点 /  合肥市春天广场24层
项目绘图 /  张茹
项目面积 /  420平米
设计时间 /  2022年3月
公司简介:一鸣空间设计机构是一家专业独立于商业空间、居住空间设计与施工双定制化的设计机构。于2016年发展至今,全国各地上千户高品质客户人群提供品位、舒适、科学、合理的居住空间也为更多的高端品牌商户及地产群体提供了更多的专业性商业化空间设计。一直秉持“专于设计、精于生活”的设计理念。坚持设计初心,不忘设计使命、将我们专业的设计理念带给身边更多的人群提高改善更多人群的居住环境。“所见所想即所得”这是 我们的承诺!