都江堰·明宇豪雅 | 220m²现代别墅设计,休闲度假的套房设计舒适度绝了
发布时间:2022-06-14 人气:1734
别墅,现代,休闲
一鸣  设计 

Use a new design  

尽享  温柔氛围
Enjoy a gentle atmosphere 


图片


客户说在前面


这个位于都江堰的别墅,是作为度假使用一年会在这里住大概四个月。所以对于收纳的需要比较少,主要以舒适和休闲的功能需求比较多。


图片


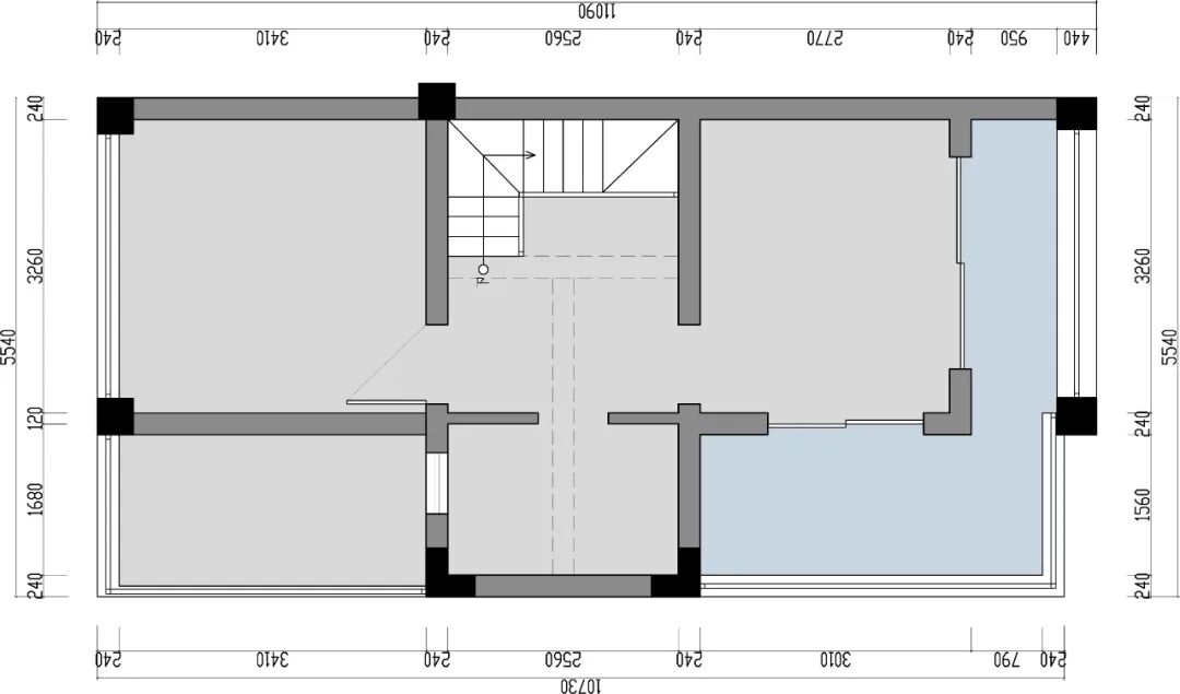
楼梯的位置空间很不好,厨房设计在楼梯间。对于热爱厨房喜欢做菜的人来说,这个空间的设计不是很合理。


图片


喜欢喝茶画画,希望有专门的空间。


图片



设计师有话说


1  拆除厨房和卫生间的墙,整体加建到外部,扩大厨房空间。

2  原有楼梯间比较狭小,拆除原有楼梯,更换楼梯间位置,增加整体通透感。

图片

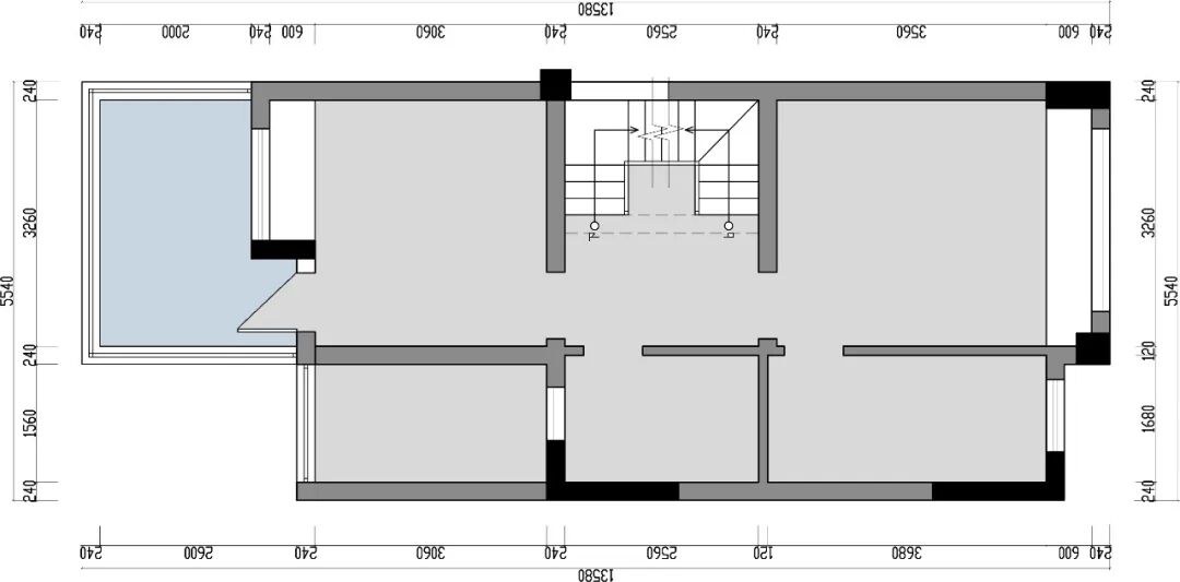
3 通过更改楼梯间的位置,整体二楼和三楼有做套房的条件。

主卧做入户门厅,更显居家仪式感。


图片


5 外扩内部空间,做卫生间,原有露台做阳光房,喝茶养花也有一番风味。


图片


——一鸣空间设计 | Y · M Space Design






01
质感 触碰心灵之弦
Tactile texture, touch your mind

岩板大理石和不锈钢板材来做电视背景墙,无主灯设计让空间的光线分布的更有内容更有层次感。电视柜下方的线性灯设计与楼梯的踏步感应灯设计让空间流动起来。




图片


在玄关的位置架设了一座绢质的屏风,透光不投影的设计更给空间增添了朦胧的美感。本案屋主喜欢画画,与这种可以作画的材质呼应更给现代的风格增添了文艺的气息。十扇联动门成功将厨房空间塑造为半敞开式空间。


图片





02
简约 勾勒理想空间
Simple, Draw the outline of dream


二楼是主卧空间,一整层都设计为套房设计,其中包括了休息区,画室,入户门厅,卫生间和茶室。整个动线的设计都更加合理,经由二楼的入户门厅向左右延伸出动线,比较自如的去往休闲区和睡眠区。


图片


图片


将干区外移到画室空间,双面盆设计一个用来梳洗另外一个则是用来对画笔刷子等进行清理。经过画室空间去往卫生间和茶室露台都是非常方便的。


图片



03
本真 倾诉自然之语
The real look, Pour out nature


三楼的次卧也做了整层的套房设计,堪比五星级酒店的惬意空间。两扇窗户让空间的采光明亮又温柔,通过氛围照明来增加层次感;选择原木作为背景墙添加细节处的精致感。


图片


经过衣帽间进入书房空间,依窗而立的悬浮书桌不会让屋主的大长腿感觉到逼仄。内嵌筒灯设计在充分的满足照明需求的同时,让层高也显得很高。


图片






项目名称 /  都江堰明宇豪雅—大气现代

设计公司 /  文青一鸣空间设计
项目地点 /  成都·都江堰
执行设计 /  王亚伟
项目面积 /  220平米

项目绘图 /  朱一夫

设计时间 /  2022年4月


公司简介:一鸣空间设计机构是一家专业独立于商业空间、居住空间设计与施工双定制化的设计机构。于2016年发展至今,全国各地上千户高品质客户人群提供品位、舒适、科学、合理的居住空间也为更多的高端品牌商户及地产群体提供了更多的专业性商业化空间设计。一直秉持“专于设计、精于生活”的设计理念。坚持设计初心,不忘设计使命、将我们专业的设计理念带给身边更多的人群提高改善更多人群的居住环境。“所见所想即所得”这是 我们的承诺!